Austgen Properties Inc.

Austgen Properties Inc.

Rentals » 100 N. Colfax - 186 N. Colfax Griffith, IN 46319

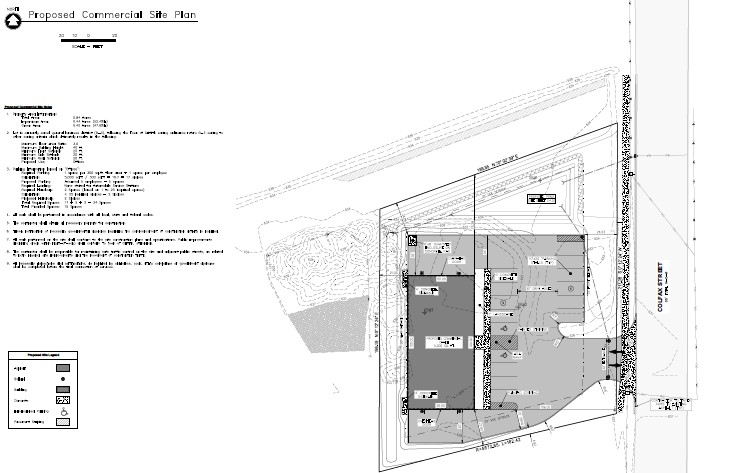
100 N. Colfax - 186 N. Colfax Griffith, IN 46319

$8,333.00 / month
Available 8/1/2026
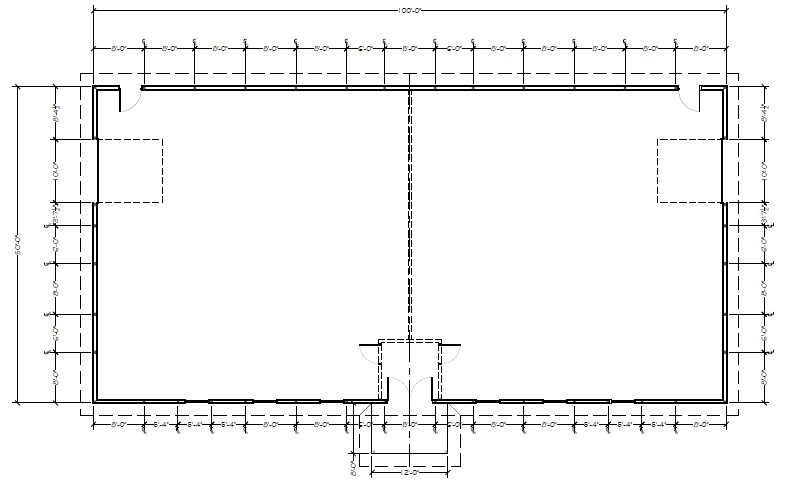
  • 5000 sqft

New 5000 sf building zoned B3 in the Town of Griffith. Interior to be build to suit. Divisible to 2500sf. $20/SF/YR NNN. Estimated NNN Charges $3.00/SF/YR. Permitted uses: Amusement Establishment, Animal Hospital, Auto Accessories Store, Machinery Sales, Orthopedic, Medical and Surgical, Construction Office, Restaurant, Showrooms/Sales and many others! Call 219-922-2074 for more details.

Lease Terms

$10,000.00 security deposit

Rental Application

Interested in one of our properties?

Apply online